견적리스트 배너
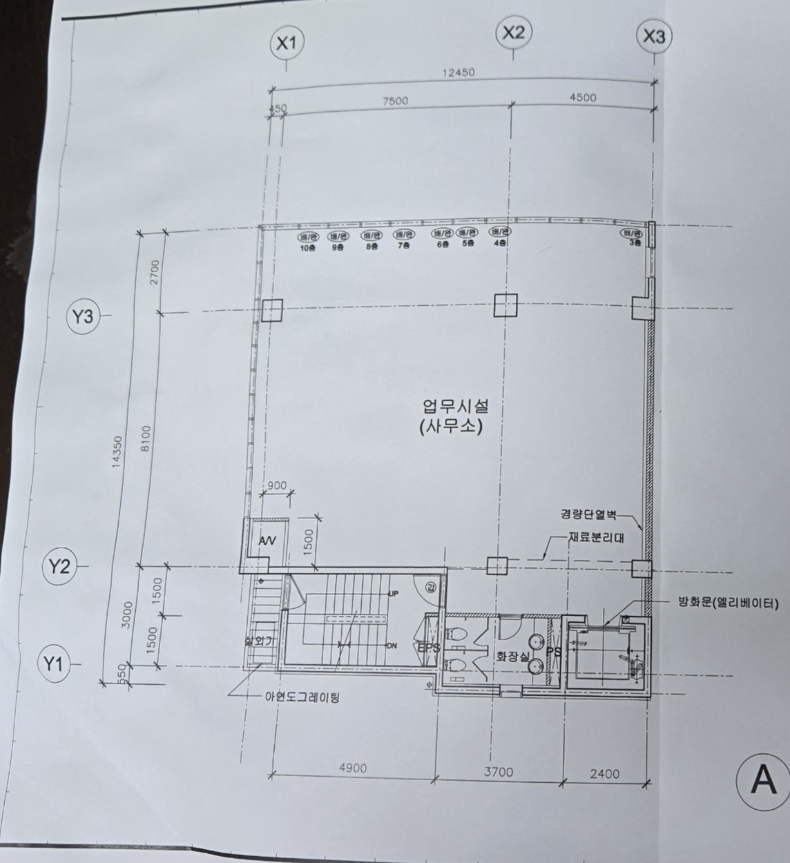
170㎡ 사무실 인테리어
견적번호 30180251119
견적분류 실시간 견적
공사분류 사무/오피스
인테리어 수준 보통
진행현황 견적마감
견적분류 일반견적
의뢰자명 황○○
연락처 010-***-****
시공지 주소 서울 강남구  ******
시공지 면적 51.5 실면적(PY) / 169.95 ㎡
시공예상일 2025-12-01 날짜미정
희망예산 업체협의 업체협의
파일첨부
요청사항 1.현재 공실상태이며 밝은 로펌/회계법인 느낌으로 고급형과 일반형 기준으로 2가지 제안 요청드립니다.
2.방 5개, 회의실1개를 만들어야 합니다.
3.공사는 12월1일 부터 가능합니다
번호 견적번호 견적분류 제목 지역 진행현황
21712 30183251119 일반견적 카페/식당 297㎡ 요리주점&이자카야 리모델링

서울 강남구

견적진행
21711 30182251119 일반견적 학원/교육 100㎡ 어린이체육학원 인테리어

서울 서초구

견적마감
21710 30181251119 일반견적 학원/교육 66㎡ 학원 칸막이공사

서울 서초구

견적진행
21709 30180251119 일반견적 사무/오피스 170㎡ 사무실 인테리어

서울 강남구

견적마감
21708 30179251119 일반견적 매장/상업 55㎡ 휴대폰매장 인테리어

경기 수원시

견적진행
21707 30178251119 일반견적 카페/식당 46㎡ 버거 체인점 인테리어

경기 평택시

견적마감
21706 30177251119 일반견적 주거공간 48㎡ 빌라 리모델링

경기 고양시

견적진행
21705 30176251119 일반견적 주거공간 109㎡ 아파트 인테리어

경기 성남시

견적진행
21704 30175251118 일반견적 매장/상업 23㎡ 복층 가차샵 인테리어

인천 미추홀구

견적진행
21703 30174251118 일반견적 기타 165㎡ 분양홍보관 인테리어

인천 남동구

견적마감